L’hôpital (dit aussi hospice) Saint-Jean, près de la Basse, était devenu trop exigu et insalubre dès la fin du XIXe siècle. Le manque de place était crucial, mais de plus sa structure, en un bloc massif, ne permettait pas d’appliquer les nouvelles techniques médicales (évolution de l’art opératoire, importance de la physiothérapie, progrès de l’hygiène et des travaux de laboratoire) et de résoudre les problèmes d’hygiène dus à la surpopulation des malades.
Dès la fin du XIXe siècle, mais surtout après la guerre de 1914-1918, les architectes abandonnèrent les bâtiments monoblocs avec des cours intérieures pour développer le système des pavillons isolés avec de vastes espaces verts. Les constructions isolées étaient parfois reliées les unes aux autres par des galeries couvertes. Cette disposition, spécifiquement française, était l’œuvre de Ténon et Lavoisier.
Le projet de la construction d’un nouvel hôpital répondant à toutes les règles d’hygiène, naquit en 1904, en même temps que démarrait la démolition des remparts-nord, qui allait ouvrir la vieille ville vers la gare, Canet, et… le Vernet. Le 7 décembre 1904, sur la proposition des docteurs Charpentier, Benoit et Brousse, il fut décidé de construire le nouvel hôpital « hors de la ville » : « Une ville nouvelle va être créée, cet hôpital y trouvera sa place ».
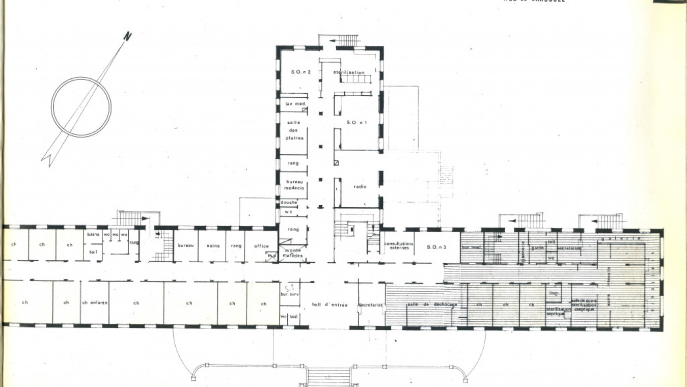
Après l’adoption du projet, à la fin de 1905, les plans et devis du nouvel hôpital furent mis en concours avec l’attribution d’un premier prix de 5000 francs. L’architecte Léon Baille remporta le concours. Ses successeurs, Traversac puis Roure continuèrent la direction des travaux de cet établissement qui s’achevèrent en 1928. L’inauguration eut lieu le 27 février 1928, l’hôpital comptait alors 38 pavillons.
Le 20 novembre 1918, la commission administrative avait décidé d’appeler le nouvel établissement « hôpital maréchal Joffre » en hommage « au glorieux patriote ».
Travaux de 1966 à 1984
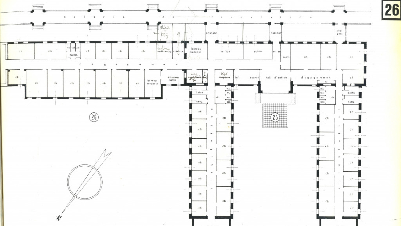
Les bâtiments devenant vétustes et hors-normes, des travaux de modernisation de l’hôpital et de la Miséricorde sont réalisés entre 1966 et 1974. C’est pendant cette période que l’idée de construire un nouvel hôpital, plus adapté aux nouvelles techniques de soin, voit le jour, mais elle sera longtemps repoussée.
Cependant, en 1984, la mise en service du plateau technique, ensemble regroupant les services chirurgicaux, propulse tout de même l’institution vers un hôpital contemporain, tout comme l’extension de la maternité, en 1999.
Perpignan Méditerranée Métropole
Office de Tourisme de Perpignan
Musée d'art Hyacinthe Rigaud
Théâtre de l'Archipel
Visa pour l'image